Зарегистрируйтесь и о Вас узнают потенциальные клиенты!

Устройство штуцерное УШК 004

До: 26.12.2022

Устройство штуцерное УШК 004

Рубрика: Промышленные товары

Описание

Устройство штуцерное УШК 004 (2ШУ-101-79-2) предназначено для регулирования объемов и давлений закачиваемой жидкости в нагнетательные скважины.

Перекачиваемая жидкость – пресные или пластовые воды с плотностью до 1,2 г/см3.

Штуцерное устройство соответствует климатическому исполнению УХЛ категории 2 ГОСТ 15150 – 69 и предназначено для эксплуатации в интервале температур от + 400С до – 600С и предельном значении относительной влажности воздуха 100% при температуре 250С.

Штуцерное устройство устанавливается на трубопроводах между двумя фланцами по РД26-16-40-89 либо по ГОСТ 28919-91. Твёрдость материалов фланцев, находящихся в соединении со штуцером, должна быть выше твёрдости материала корпуса штуцера не более чем на 50 единиц по Бринелю.

Штуцерное устройство в зависимости от диаметра дросселя выпускается в двух исполнениях. Исполнение УШК 004 с комплектом сменных частей УШК 004-10 может иметь диаметр дросселя 1…12 мм. Исполнение УШК 004-01 с комплектом сменных частей УШК 004-10-01 имеет диаметр дросселя 13…20 мм.

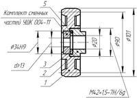
 Исполнение УШК 004 штуцерного устройства состоит из корпуса 1, гайки 2, которая чрез кольцо 5 зажимает вставку 6 вместе с помещенным в ней дросселем из комплекта сменных частей УШК 004-10. Наружный посадочный диаметр дросселя равен 22мм, Для защиты керамического дросселя между кольцом 5 и гайкой 2 закладывается сетка 3, из нержавеющей стали 12Х18Н9Т.

Исполнение УШК 004-01 штуцерного устройства применяется с комплектом  сменных частей УШК 004-10-01.  Наружный посадочный диаметр дросселя в комплекте сменных частей УШК 004-10-01 равен 34мм, что позволяет использовать для исполнения УШК 004-01 корпус с гайкой из исполнения УШК 004 без вставки с установкой керамического дросселя непосредственно в корпус штуцерного устройства.

 

 

Поставщик

Организация: НПП Обуховская промышленная компания
Телефон: +7 (831) 295-50-61
Адрес:

Ваша компания

Зарегистрируйтесь и о Вас узнают потенциальные клиенты!
Cообщить о неточности
Карта сайта →
Финансы
Разделили бизнес, а налоговая попыталась сложить его обратно
Банки
Лизинг
Инвестиции
Страхование
Господдержка
Помощь бизнесу
1. Открыть бизнес
2. Выбор помещения
3. Эффективная реклама
4. Подбор аутсорсинга
5. Господдержка
6. Уплата налогов
7. Поиск кадров
8. Юридическая помощь
Организации
Добавить свою
Новости компаний
Товары и услуги
Добавить товар
Добавить услугу
Тендеры
Обучение
Центры проф. обучения
Новости
О портале
Возможности сайта
Реклама на сайте
Контактная информация
Ваш кабинет
Зарегистрируйтесь и о Вас узнают потенциальные клиенты!
© 2009—2026  Единый республиканский бизнес-портал
О портале | Контактная информация | Реклама на портале | Правила пользования |
Сделано в «Техинформ» Уфа
Информация на сайте не является публичной офертой